
밝고 바람이 잘 통하는 다세대주택을 만들고 싶었습니다. 우리는 원룸, 투룸, 빌라 등으로 불리는 다세대주택에서의 삶을 잘 알고 있습니다. 우리 도시에서 가장 흔한 주거유형 중 하나인 다세대주택이 조금 더 쾌적한 환경이 되었으면 좋겠습니다. 그래서 우리는 다세대주택을 구성하는 요소를 하나하나 살펴보며, 사업성을 만족하면서 공간의 품질을 높일 수 있는 방법들을 찾았습니다. 이것은 그 고민의 기록입니다.






공용부분 주출입구


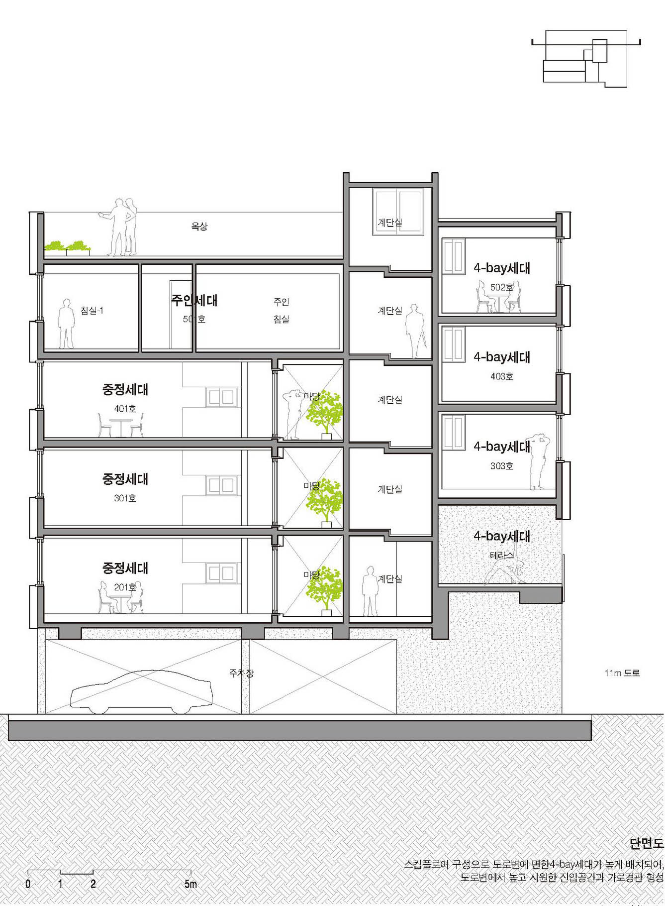
주차장 출입구와 보행 동선을 분리하여 도로변에서 바로 진입할 수 있는 주출입구를 마련하였으며, 스킵플로어 구조를 활용하여 도로변에서 높고 시원한 진입 공간을 형성하였습니다. 또한, 가로 경관을 해치는 노출형 주차 방식을 지양하고, 쾌적한 자주식 주차장으로 계획하였습니다.

공용부분 계단실


스킵플로어 구성으로 계단참에서 각 세대로 직접 진입할 수 있도록 하였으며, 복도와 같은 불필요한 공용공간을 최소화하여 각 세대가 활용할 수 있는 마당 등의 여유 공간을 확보하였습니다. 또한, 어두운 복도 공간 대신 밝고 쾌적한 계단실을 통해 세대로 진입하도록 설계하였습니다.

전용부분 중정세대

계단참에서 단독으로 세대로 진입할 수 있으며, 외부 마당을 거쳐 들어가도록 설계하여 마치 단독주택에 들어서는 듯한 공간 경험을 제공합니다. 또한, 중정과 마당을 포함한 세 면이 외기와 접하여 풍부한 채광과 자연 환기가 가능하도록 하였습니다. 더불어, 중정을 통해 위아래 세대 간의 소통이 이루어질 수 있도록 계획하였습니다.




전용부분 4bay 세대



채광이 좋은 남향면과 공간적 여유가 있는 11m 도로변을 따라 매스를 길게 형성하고, 그에 따라 각 세대를 배치하여 4-bay 공간을 구성하였습니다. 남향과 도로변을 향한 긴 매스에 배치된 세대들은 네 개의 창호를 통해 각각 다른 기능의 공간과 면하도록 설계하여, 실내 어디에서든 동일한 조건의 채광과 환기, 그리고 조망이 가능하도록 하였습니다. 또한, 도로변에 위치한 2층 세대에는 넉넉한 테라스를 배치하여 적극적인 외부 활동이 가능하도록 하였습니다.


전용부분 주인세대


최상층에는 주인 세대를 배치하였으며, 외부 마당을 통해 세대로 진입하도록 하여 마치 단독주택에 들어가는 듯한 공간 경험을 제공하였습니다. 또한, 스킵플로어 구조와 다락, 그리고 높은 층고를 가진 거실을 활용하여 입체적인 공간을 구성하였습니다. 더불어, 네 면이 외기에 면해 있어 실내 어디에서나 풍부한 채광과 자연 환기가 가능하도록 설계하였습니다.





위치
용도
공사유형
대지면적
연면적
규모
업무범위
설계기간
시공기간
사진
안산시 상록구 본오동
다세대주택
신축
262㎡
456㎡
지상 5층
설계, 설계의도구현
2016. 04 ~ 2016. 11
2016. 12 ~ 2017. 12
노경, 피그건축사사무소