.jpg)
생산공간, 휴게공간, 업무공간의 복합체
뷰웍스 화성사업장은 생산공간, 휴게공간, 업무공간이 복합되어 있습니다. 1, 2단계에 걸친 증축으로 기업의 성장을 지원하고, 교외 자연을 활용해 직원의 회복 탄력성을 끌어올리고자 했습니다.



1단계에 신축한 건물은 지하 1층, 지상 6층 규모입니다. 지하 1층부터 지상 3층까지는 생산공간으로 사용하고, 그 위에 세 개 층의 사무동을 두었습니다. 설비를 위한 공간(공장동)과 사람을 위한 공간(사무동)을 나눠 공장동은 산업단지를 면한 앞쪽에, 사무동은 경치가 좋은 뒤쪽에 배치하였습니다. 이러한 설계 전략은 근무 환경에 대한 만족도를 끌어올리면서도 생산성을 높일 수 있습니다.
.jpeg)

.jpg)
자연환경을 바라볼 수 있는 곳은 유리 커튼월로 마감했습니다. 1층의 로비, 2층의 라운지, 4~6층 식당 및 업무공간에서는 이 통창 너머로 경치를 구경할 수 있습니다.
.jpeg)

.jpeg)
.jpeg)
증축을 고려한 마스터플랜
처음부터 증축을 염두에 두고 건물의 배치, 규모, 형태 등을 결정했습니다. 마스터플랜 2단계는 공장동을 수평으로 연장하는 계획입니다. 2단계 생산라인은 기존 공장동의 생산 흐름과 같은 층에서 연결되어 효율적이며, 직원을 위한 공간은 외부공간을 적극적으로 제공합니다.


.jpg)
사옥으로서의 공장
사무동 1층 로비와 계단으로 연결된 2층 라운지는 직원들이 출근할 때 혹은 손님이 방문할 때 처음 맞이하는 공간으로, 회사의 첫인상을 좌우합니다. 기존의 대다수 공장이 투박한 이미지를 가졌다면, 이곳은 마치 미술관과 같은 높은 층고와 아늑한 휴게공간으로 공장에 대한 선입견을 벗겨내고 있습니다.
.jpg)
.jpg)

.jpeg)
직원의 회복탄력성을 높이는 공간
오전 업무를 마친 후 남은 오후를 위해 재정비하는 시간, 점심시간을 맞아 식당에 들어선 직원들은 병풍처럼 펼쳐진 풍경을 보며 숨을 고릅니다. 날이 좋은 날에는 식당에서 곧바로 연결된 테라스로 나가 햇살을 즐길 수도 있습니다. 평소에는 식당으로 쓰이는 곳이지만 때로는 세미나실로 변신하기도 합니다.
.jpeg)
.jpeg)
.jpeg)
.jpg)

단지의 정면성
정읍 목재문화체험장은 정읍 임산물 체험단지 내에 위치합니다. 먼저 건립된 차향문화관과 차향다원이 단지 전체의 전면 마당에 면해서 정읍천을 향한 정면을 형성하고 있었습니다. 목재문화체험장이 건립되는 대지는 도시계획상의 이유로 삼각형 형태로 분할되어 있어서, 단지 전체의 정면성과 필지의 형태를 종합적으로 고려하여 계획을 진행해야 했습니다.
그래서 우리는 차향문화관과 차향다원의 전면마당을 연장하고, 각 건물들의 건축선과 높이를 맞춰서 정읍천을 향한 단지 전체의 정면성을 그대로 유지하였습니다.

.jpeg)
.jpeg)
마당에 대응하는 방식
V자 목구조 기둥이 전면에 드러나는 2개의 목재 매스가 주변 건물에 순응하며 정면을 형성합니다. 목재 매스를 연결하는 유리 매스를 주 출입구와 홀로 만들어서 방문객들이 전면 마당에서 자연스럽게 진입하도록 하였습니다.
.jpeg)

.jpeg)
건물의 첫인상, 지붕을 받치는 나무 기둥
목재문화체험장은 지붕으로 그 영역이 규정되는데, 지붕을 지지하는 V자 목재 기둥을 건물 전면에 노출시켰습니다. 건물의 구축방식이 아이덴티티가 되어 방문객들의 첫 눈을 끄는 요소가 되기를 바랬기 때문입니다.

.jpeg)
.jpeg)
건물의 구축방식, 이 집의 아이덴티티
지붕을 지지하는 목재 보와 V자 목재 기둥이 건물 전체를 둘러싸도록 배치시켜, 어디서나 가장 먼저 인지되는 요소로 만들었습니다. 이로 인해 건물의 가장 기본적인 구조 요소인 기둥과 보가 이 집에서 가장 중요한 입면 요소가 되어서 목재문화체험장을 상징하는 아이덴티티가 되었습니다.
.jpeg)
.jpeg)

.jpeg)
외부와 내부가 연속적인 공간
목재 키즈카페는 적삼목 외장재 하부로 투명한 유리와 폴딩도어를 두어 실내공간을 확장시켰습니다. 바깥에서 보이는 목구조와 목재 마감을 실내까지 연속시켜서 나무 속에서 나무를 체험하는 공간으로 만든 것이죠.
.jpeg)
.jpeg)


선택과 집중
설계 공모 이후 팬데믹과 국제 전쟁 등이 겹치며 공사비는 급격하게 상승했고, 그로인해 건물의 규모를 줄여야만 했습니다. 적정 규모를 유지하기 위해 목구조와 철근콘크리트 구조를 혼합하여 공사비를 최적화시켰습니다. 지붕과 지지구조인 V자기둥, 나무를 다루는 공간의 구조를 목구조로 하고, 그것을 최대한 드러내어 마감비용을 줄이는 동시에 공간의 정체성을 확보하려고 했어요. 나머지 부분은 경제적인 콘크리트 구조를 적용하고 페인트로 마감하여 공간이 드러나는 방식이 자연스럽게 달라지도록 했죠.


.jpeg)
나무를 다루는 곳, 나무로 만든 공간
목재문화체험장은 목재의 생산부터 이용에 대한 전반적인 정보제공과 직접체험을 통해서 목재의 혜택을 오감으로 느낄 수 있는 체험형 문화공간을 지향합니다. 따라서 건물을 세우는 방식으로 목구조를 적극적으로 활용하고 그것이 아이덴티티로서 드러나기를 기대했습니다. 또한 목공예실 등 목재를 직접 다루는 주요 실들은 나무 속에서 다양한 체험활동이 일어나는 공간을 상상했습니다. 목구조를 노출하고 목재 널 마감재와 자작나무 가구까지, 공간 전체를 나무로 만들어서 공간의 용도와 형태를 일치시키고자 했습니다.
.jpeg)

.jpeg)
나무로 만든 곳과 콘크리트로 만든 곳
콘크리트 구조를 적용한 복도와 공용부는 페인트로 마감하고, 목구조가 적용되는 주요실들은 목재 널로 마감하여 실내에서 그 공간의 구축방식이 은유적으로 느껴지도록 계획했습니다.
.jpeg)


.jpeg)
주변 환경에 대응하는 방식
목구조의 특성상 우수 처리를 위해서는 경사지붕이 가장 합리적인 대안이었습니다. 그래서 건물 뒤쪽으로 완만하게 경사를 두어 전면 마당에 대응하는 정면부의 높이는 높게, 주차장 쪽은 낮게 만들었어요. 그러자 자연스럽게 외부공간의 성격에 따라 건물의 높이를 달리하는 건물이 되었습니다.
전면 마당에 대응하는 투명한 유리매스로 주출입구를 만들었다면, 주차장을 연결하는 부출입구는 매스를 부드럽게 열어주어 자연스러운 개구부를 만들었습니다. 유리와 이어지는 부분은 금속으로 마감하여 진입공간의 경험을 더 다채롭게 만들어주었습니다.
도시계획상의 이유로 차향다원 사이에 애매하게 남겨진 공지에는 잔디를 심어서 목공예실과 키즈카페, 차향다원에서 서로 바라볼 수 있는 공간으로 활용하도록 했습니다.

.jpeg)
깊고 풍부한, 입체적인 입면
목공예실과 키즈카페에서 잔디마당을 바라볼 수 있도록 적삼목 마감 아래로 투명한 유리창을 계획했습니다. 외벽보다 튀어나온 지붕, 지붕을 지지하는 목재 보와 V자 기둥, 기둥 뒤에 있는 적삼목 널과 투명한 유리창, 그리고 그 너머로 보이는 실내공간의 다양한 활동들이 서로 대비되어 더 깊고 풍부한, 입체적인 입면을 만들어낼 수 있게 되었습니다.

.jpeg)
.jpg)
형태와 구조로 극대화된 가용면적
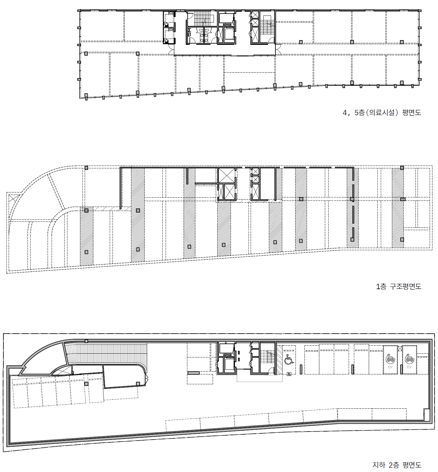
비산동 의료시설의 부지는 왕복 10차선의 대로변에 면한 길이가 75m나 되는 긴 땅입니다. 건물이 노출되는 면적이 클수록 수익이 올라가는 임대용 건물을 짓기에는 최적의 조건이라고 할 수 있죠. 그러나 부지의 폭이 16m~20m 밖에 되지 않는 것이 문제였습니다. 거기에 더해서 경관지구로 지정되어 있기 때문에 대지 경계선으로부터 2m를 물러나서 건물을 지어야 했습니다.
우선 여러 대안을 검토해 사업성과 가용면적을 극대화하는 방안을 모색했습니다. 여기에 더해 넉넉한 면적을 위해 내부에 구조와 설비 이외에는 공간을 차지하는 요인을 최소화했습니다. 그리고 기둥 대부분을 건물 외곽에 배치해 트인 내부공간을 최대한 확보했습니다.
.jpeg)
.jpeg)
.jpeg)
.jpeg)


구조적 시도로 늘어난 주차 자리
이 사업은 처음부터 의료시설로 임대할 것을 염두에 두고 진행되었습니다. 병원은 다수의 방문객이 오가는 곳인 만큼, 주차공간 확보는 중요한 이슈였습니다. 하지만 지상층의 기둥이 지하주차장으로 그대로 내려오면 주차장을 만드는 것이 불가능했습니다. 지상 6개층의 기둥의 위치를 지하층에서는 이동시켜서 주차장을 만들 수 있도록 구조 문제를 해결했습니다.





.jpeg)
.jpeg)
.jpeg)
.jpeg)
.jpeg)


서로 다른 단체가 함께 써야 하는 건물
연천군 다목적복지센터는 성격과 요구사항이 전혀 다른 두 기관, “장애아동 재활치료교육센터”와 “연천군 보훈단체”가 함께 사용하기 위한 건물입니다. 두 기관은 건물에 대해서 바라는 점도 정 반대였습니다. 그럴싸한 보훈회관을 마련하는 것만을 오랫동안 기다려온 보훈단체는 자신들이 전면에 드러나기를 원했습니다. 반면, 장애아동 센터는 아이들을 돌보기에 적합한 쾌적하고 안전한 환경이 필요했죠.


우리는 전면 도로변에 보훈단체를 위한 출입구와 라운지를 만들어서, 보훈회관 방문객들로 하여금 마치 이 건물 전체가 보훈회관인 것처럼 느껴지도록 했습니다. 반면 장애아동 센터는 큰 도로변에서 한켠 안쪽에 있는 중정을 통해서 안전하게 보호받으면서 진입하도록 했어요.


각각의 기관은 서로 분리된 각자의 출입구를 가지고 별개의 기관처럼 건물을 사용합니다. 3층은 두 기관 뿐 아니라 지역주민과 함께 공유하는 회의실과 라운지 등의 공공시설이 있기 때문에 분리시켰던 두 건물을 하나의 상징적인 매스로 통합시키기로 했습니다.
.jpeg)

.jpeg)
안전하게 환대받을 수 있는 장애아동 센터
필요한 기능에 따라서 대로변의 번듯한 보훈회관과 건물 안쪽의 장애아동 센터로 공간의 큰 틀을 구획했지만, 그렇다고해서 마치 장애아동 센터가 숨어있는 것처럼 만들고 싶지는 않았어요. 그동안 변변한 시설 하나 없이 지내온 아이들을 위해서 어렵게 만들어지는 공간인데, 더이상 다른 사람들의 눈치를 보면서 숨죽이며 들어가게 하고 싶지 않았습니다.
대로변에서 한켠 물러나 있는 것은 뒤로 숨기 위함이 아니라, 외부의 위험으로부터 보호받는 조용하고 쾌적한 마당을 만들기 위한 것이라고 생각했어요. 들어가는 과정은 따뜻하게 환대받는 길이어야 했습니다. 그래서 도시를 향해서 크게 열린 코너를 만들고, 그 너머로 보이는 밝은 중정이 방문객들을 맞이하는 진입공간을 만들었습니다.

.jpeg)
중정 내부는 따뜻한 공간의 분위기를 위해 목재 패널을 적용하여 외부로부터 분리되어 있는 따뜻하고 안전한 공간에 들어와 있는 듯한 느낌을 줄 수 있도록 계획했어요.
.jpeg)
.jpeg)

.jpeg)
3층 매스의 코너부에 층간 트러스를 활용한 캔틸레버 구조를 적용하여 저층부 2개층의 코너를 개방시켰고, 트러스 구조를 3층 라운지에서 그대로 드러내어 공간의 이유가 그대로 설명되도록 하였습니다.







.jpeg)
공간의 쓰임새에 걸맞는 재료
건물의 상부는 알루미늄 타공패널을 활용한 외피를 적용하여 전체 시설을 통합하는 상징적인 건축물로 계획했고, 컬러노출콘크리트와 투명 유리가 조합된 저층부는 공중에 떠있는 매스를 지지합니다.
.jpeg)
.jpeg)

.jpeg)

있어 보이는 건물
"우리가 나름 업계에서는 선두주자인데, 회사 건물이 이러니 직원 구하는 것도 쉽지가 않습니다. 빌딩처럼 있어 보이게 지어주세요."
프로젝트를 시작하면서 건축주께서 특별히 당부하신 말씀이었습니다.
도심지 내 이형의 대지는 기능과 법규의 퍼즐을 맞추며 볼륨이 결정됩니다. 물류 창고와 실험실로 쓰일 1~3층은 화물 입반출과 실험장비를 고려해 층고를 5.5m로, 사무 공간인 4~5층은 층고를 4.4m로 잡았습니다. 좁고 긴 대지에 높은 공간을 쌓아 올리니 일반적인 5층 건물과 달리 길쭉한 비례의 매스가 만들어졌습니다. '빌딩'처럼 있어보이는 건물의 출발점이 만들어진 셈이죠.

기능과 맥락에 대응하는 외피
삼형전자 사옥은 구로구 고척동의 큰 도로에서 한 칸 안쪽으로 들어와 있습니다. 건폐율과 용적률이 높은 지역이어서 주변에는 큰 건물들이 많이 있습니다. 복잡한 도심지에서 건물 전체를 한 눈에 볼 수 있는 경우는 흔치 않습니다. 우리의 경우도 마찬가지였습니다. 저 멀리 교차로에서는 건물의 상부가 보이고, 대로변에서는 높고 낮은 주변 건물들 사이로 측면이 겨우 노출되고, 가까이 다가와서는 길에 면한 건물의 일부분만 보이는 식입니다.



우리는 이런 도시의 틈새에 대응하는 방식을 고민했습니다. 먼저 건물의 외피를 네 가지 유형(A-보여주는 창, B-걸러주는 창, C-음영을 만드는 패널, D-단정한 패널)으로 구분하고, 주변 상황과 내부 공간에 맞게 조합해서 외관을 만들었습니다. 각 유형별로 투명한지(A) 아닌지(B), 굴곡이 있는지(C) 평평한지(D)가 다르지만, 각각의 입면 요소는 가로 세로의 길이를 각각 1100mm로 맞췄기 때문에 전체가 하나의 외피 시스템으로 통합됩니다.




주로 사람들이 이용하는 공간에는 유리 커튼월 방식의 외피(A, B)를 적용했습니다. 유리면에서 100mm 튀어나온 수평 루버와 수직 핀의 두께를 각각 20mm와 3mm로 달리하여 길이가 변하는 수평라인을 강조해 입면에 리듬감을 주었습니다


물건을 적재하는 공간은 굳이 투명할 필요가 없으니 두 가지 솔리드 패널(C, D)로 마감했습니다. 절곡 패널과 수평 부재로 마감한 외피(C)는 시간에 따라 그림자가 달라지며 입면의 깊이감에 변화를 줄 수 있습니다. 또 내부 공간의 필요에 따라 개폐창을 내야 할 때에도 패널과 같은 크기와 각도로 설치해서 입면의 통일성을 유지하도록 했습니다.

"파사드에 사용할 창문과 외벽을 네 가지 종류로 디자인해서 틈새의 특성에 맞춰 사용했다. 예를 들어 건물이 크게 드러나는 정면 시점에는 유리창을 사용하고, 건물 사이로 좁게 드러나는 측면 시점에는 디테일을 추가한 패널벽을 사용하는 식이다. 파사드 재료의 기본 크기를 일정하게 정해두고 디자인 모티브를 변주하여 각 틈새에 대응하는 파사드를 만들었다."
- 조성익(홍익대학교 교수), '맥락에서 온 오브제건축', 「SPACE(공간)」 665호, 2023년 4월


공간 경험이 주는 자부심
직원들이 회사에 출근해서 퇴근할 때까지 만나는 다양한 공간 경험이 회사에 대한 자부심으로 연결된다고 생각합니다. 회사가 직원들에게 줄 수 있는 복지혜택이야 여러 가지가 있겠지만, 하루의 1/3 이상을 지내는 환경을 독특하고 쾌적하게 만들어주는 것은 아주 중요한 공간 복지입니다.
도시의 틈새에 대응해서 만들어낸 아이덴티티를 갖는 외관에 더해서, 투명 유리(A)와 실크스크린 유리(B)를 대비시켜 저 멀리 교차로에서부터 스카이 로비의 투명함을 느낄 수 있도록 했습니다. 출근길에서 가장 먼저 만나게 되는 회사의 모습입니다.


대지가 좁기 때문에 1층에 주차장과 물류 창고를 만들고 나면, 그럴싸한 로비를 만들 수 없었습니다. 그래도 최소한 직원들이 지게차와 화물차들을 피해 다니면서 출근하게 하고 싶지는 않았습니다. 번듯한 오피스로 출근한다는 느낌을 주기 위해 출근 동선이 주차장과 겹치지 않도록 코어를 최대한 도로변으로 바짝 붙이고 1층 엘리베이터 홀에는 작은 정원을 두었습니다.

.jpeg)
.jpg)

.jpeg)
주 업무 공간인 4층에 내리면 1층에서 예상하지 못했던 밝고 시원한 로비를 만나게 됩니다. 고척 스카이돔을 바라보며 그날 할 일을 정리하고 5층 라운지에 있는 동료와 인사하는, 업무가 시작되는 공간입니다.
.jpeg)
.jpeg)
.jpg)

.jpeg)
높은 층고의 사무실에는 실크스크린 유리 커튼월(B)을 설치해 주변의 불편한 시선은 거르고 채광은 충분히 들어오게 했습니다.
.jpeg)
.jpeg)

.jpeg)
.jpeg)
사무공간 안쪽으로는 4-5층을 연결하는 내부 계단을 만들고, 소통과 휴식을 위한 보이드 공간을 두었습니다.

“업무 환경에 대한 직원 만족도가 회사 이미지에 많은 영향을 주고 있다. 근무 만족도가 연봉과 회사 브랜드에 치중되어 있던 과거와 달리 새로운 기준이 제시되고 있는 것이다. 이러한 변화의 바람은 기업의 입장에서도 좋은 인재를 영입하기 위해 중요한 과제로 떠오르고 있다.”
- ‘일하기 좋은 기업의 조건, 이제는 업무시설의 완성도까지 따져야’, 「파이낸셜뉴스」, 2020년 2월 13일

.jpeg)
.jpeg)


맞벽건축으로 면적과 비용을 사수하도록
“이 건물이 잘 되면 옆의 땅에도 똑같이 지으려고요”
첫 미팅 때 건축주께서 하신 말씀입니다. 하지만 그 계획은 면적과 공사비 모두에 불리한 면이 많습니다. 각각 두 건물을 짓기보다는 맞벽건축으로 건물을 서로 붙여서 지으면 두 건물 사이를 띄우지 않아도 되고, 두 건물에 중복되는 비용마저 절감할 수 있습니다. 나아가 상업시설은 행인의 눈길을 끄는 것도 중요하죠. 맞벽건축은 두 건물이 하나의 큰 건물처럼 보여 길가에서 눈에 띄는 장점이 있습니다.

.jpeg)
맞벽건축에서 연결복도란 두 건물을 연결하는 공간입니다. 홀과 출입구를 연결복도로 활용하면, 홀과 출입구가 각 건물에 따로 있을 때보다 두배 넓어지게 되죠. 면적을 추가로 할애하지 않아도 공용공간을 여유롭게 쓸 수 있는 셈입니다.
.jpeg)

"비원(조양동 근린생활시설)은 속초 청초호유원지 인근에 위치한 근린생활시설로, 카페나 식당으로 임대하기 위해 지어진 건물이다. 대상지는 인접한 두 필지로 각각 소유주가 달랐다. 우리는 두 건축주에게 똑같은 건물 두 동을 짓는 것 대신 맞벽건축을 제안했다. 건물을 맞붙여 지으면 애매한 사이 공간 없이 제법 규모 있는 몰처럼 만들 수 있고, 연결복도를 활용해 더 넓은 홀과 출입구를 가질 수 있기 때문이다."
- 이주한, '비원', 「SPACE(공간)」 665호, 2023년 4월


인기 많은 창가 자리를 최대한으로
카페나 식당은 인기 있는 창가 자리를 최대한 확보하는 게 유리합니다. 따라서 대지에 면한 세 개의 도로를 따라서 건물을 U자 형태로 만들었습니다. 도로를 향해 연속된 창은 도시 풍경을 마치 파노라마처럼 보여주게 됩니다. 건물 안쪽으로는 바깥의 도시를 조망할 수 없으니 건물 안에서만 누릴 수 있는 정원을 조성해 또 다른 볼거리를 만들었습니다. 정원 쪽으로는 창문을 크게 내고 테라스가 있는 자리를 만들었습니다. 일부 구간에는 폴딩도어를 열어 실내와 외부 테라스를 한 공간으로 사용할 수도 있습니다.





.jpeg)
.jpeg)
.jpeg)

“도로에 면한 창과 정원을 면한 창에서 바라보는 대상이 다르므로 창의 형태, 즉 바라보는 방식도 달라야 했다. 도시를 파노라마로 조망할 수 있는 바깥 입면에는 긴 띠창을 내고 중간에 높이가 다른 창들을 더해 독특한 리듬감을 의도했다. 반면 안쪽에서는 정원을 적극적으로 즐길 수 있도록 창을 최대한 크게 만들고 그 앞에 테라스를 두어 자연을 바라보는 공간의 깊이를 만들었다.”
- 이주한, ‘비원’, 「SPACE(공간)」 665호, 2023년 4월

.jpeg)
.jpeg)


건물 뒤편도 생기 넘치게
건물 뒤편을 칙칙하게 방치하지 않고 남김없이 이용하도록 정원을 꾸렸습니다. 뒤편의 비밀스러운 정원은 밖에서 봤을 때 전혀 예상치 못한 볼거리가 됩니다. 1층부터 4층까지 연결된 계단에서는 산책로를 걷듯 정원을 구경하며 오르내릴 수 있죠. 사실 맞벽건축은 건물마다 계단을 따로따로 만들어야합니다. 조양동 근린생활시설의 계단은 하나의 큰 계단처럼 보이지만, 이 역시 두 계단으로 이뤄졌습니다. 계단 두 개를 대칭으로 만들면 서로 등을 돌린 듯 보이지만, 계단 하나를 뒤집으면 두 계단이 하나로 이어진 듯 보이게 됩니다.
.jpeg)
.jpeg)





인재 확보를 위한 기숙사
생산직에는 젊은 인력이 필요하지만, 청년을 채용하기가 힘든 현실입니다. 그 때문에 요즘 기업들이 우수한 직원을 유치하고자 각종 복리후생에 투자한다 해도 과언이 아니죠. 교외에 자리한 공장의 경우 기숙사는 인재를 들이는 중요한 복지입니다. 타지역에서 온 인재들의 주거 고민을 덜어주니까요. (주)리팩은 자전거로 공장을 오갈 수 있는 근거리에 기숙사를 지었습니다.
.jpeg)

좁은 골목길에 건물을 신축할 때
리팩 가좌동 기숙사는 저층 주택이 밀집한 오래된 주거지역의 좁은 골목길에 있습니다. 대지의 남쪽은 3.5m 폭의 위험한 통과도로를, 북쪽은 길에 면한 집들이 공동마당처럼 사용하는 막다른 골목을 접하고 있습니다. 회사에서 필요한 인원을 수용하려면 두 필지를 합한 대지에 주차장을 갖춘 5층 건물을 지어야 했습니다. 하지만 이는 동네의 스케일과는 맞지 않는 크기였습니다. 작은 동네에 큰 건물이 줄 위감을 해소하는 것이 설계의 시작이었습니다.

비좁은 길에 숨통을 열어주는 건물
우선 큰 매스를 주변 건물의 층고에 맞춰 2.7m 높이로 나누고, 위로 갈수록 각 층이 남쪽으로 25cm씩 밀리도록 이동시켰습니다. 그래서 북쪽 골목에서는 하늘이 더 넓게 보이고 건물은 작게 느껴지게 됩니다. 반면 남쪽에서는 땅으로 내려올수록 대지경계선과 간격이 넓어지기 때문에 비좁고 위험한 통과도로에 숨통을 열어줄 수 있습니다.






1층을 필로티로 띄우자 단절되어 있던 양쪽 길이 이어지면서 동네에 여유가 생겼습니다. 건물의 주 출입구도 남쪽과 북쪽 어디서든 자유롭게 접근할 수 있습니다.



.jpeg)
작은 스케일과 외부 공간
건물 중앙의 외부 계단을 입면에 드러내 긴 매스를 한번 분절시켰습니다. 그리고 침실을 전면(남쪽)에 배치하여 건물의 가로폭을 침실 단위로 나누고, 침실은 다시 테라스 난간벽으로 더 작게 분절시켜 동네의 스케일에 대응했습니다.



200평 집에서 가장 중요한 3평
200평 남짓한 집이지만 거주자 개개인에게는 개인공간이 가장 소중할 것입니다. 모든 개인실은 집에서 환경이 가장 좋은 남쪽에 배치했습니다. 방마다 작은 발코니도 딸려 있습니다. 작더라도 쾌적하게 나만의 공간을 누릴 수 있도록 하고 싶었습니다.
공용공간인 거실과 주방은 가장 안쪽에 배치해서 개인이 원할 때 선택적으로 공동체에 참여할 수 있도록 했습니다. 만일 회사 기숙사가 일반 집처럼 공용공간을 중심으로 구성된다면, 퇴근 후에도 수시로 회사 사람을 마주쳐 집이 아니라 회사의 연장선처럼 느껴질 것만 같았기 때문입니다.





“직원 기숙사이기 때문에 거실이나 주방 같은 공간이 집의 중심이 되면, 퇴근하고도 상사와 저녁밥을 같이 먹어야만 하는 불편한 집이 될 것 같았다. 작더라도 쾌적한 온전히 나만을 위한 공간을 만들기 위해 발코니가 있는 개인실을 남쪽 전면에 배치하고, 나머지 공간은 복도 건너편(북쪽)에 두어 선택적으로 공동체에 참여하도록 했다.”
– 이주한, ‘단단 기숙사’, 「SPACE(공간)」 665호, 2023년 4월

계단실을 그럴싸한 반외부 공간으로
집이 작아질수록 거주자에게는 자연스럽게 외기를 느낄 수 있는 공간이 필요합니다. 출퇴근길에 항상 스치는 계단실을 외부로 열어주자, 오가는 일상 속에서 동네의 작은 운치를 느낄 수 있는 쾌적한 반외부 공간이 되었습니다. 난간 너머로 열린 풍경은 사방이 벽으로 막힌 계단실에서보다 오르내리는 지루함을 덜어줄 수 있습니다.
.jpeg)
.jpeg)
.jpeg)
.jpeg)

.jpeg)
.jpeg)
숙박객에게 통째로 땅 빌려주기
관광지에서 조금 떨어져 있는 대신 목가적 풍경이 펼쳐진 곳의 숙소는 어때야 할까요? 관광지 근처 숙소에서보다 누릴 수 있는 무언가가 더 있어야 하지 않을까요? 그래서 물천리 게스트하우스는 집을 포함한 ‘땅’을 통째로 빌려주기로 했습니다. 집과 야외공간, 그리고 그 앞의 개울과 개울 너머의 농촌 풍경을 한 세트로 빌려줌으로써, 숙박시설의 경쟁력을 확보하려고 한 것이죠.


벽으로 땅 나누기
땅을 나누는 선은 벽이 되고, 그 벽이 모여 다섯 개 객실과 리셉션 공간을 구성합니다. 각 객실은 벽 하나를 공유해 대지와 공간을 효율적으로 사용할뿐더러 시공비를 절감할 수 있죠. 숙소의 문을 열고 들어오면 층고 높은 거실과, 통창 건너 테라스와 풍경이 한눈에 들어옵니다. 옆 공간에는 침실이 있고, 침실에서만 들어갈 수 있는 가장 프라이빗한 곳에는 야외수영장이 자리합니다. 야외수영장에서는 하늘을 올려다보며 여유로운 시간을 보낼 수 있습니다.
곡면의 볼트 지붕은 덮는 방식에 따라 실내, 반(半)야외, 야외공간을 만들어 작은 숙소에서도 다양한 공간감을 선사합니다.

.jpeg)
.jpeg)

.jpeg)
.jpeg)
.jpeg)

.jpeg)
.jpeg)
작지만 거대한
50평이 채 안되는 작은 땅이지만, 건축주는 건물이 커 보이길 원했습니다. 사선제한이라는 장애물도 있었습니다. 이러한 제약 속 건축주의 희망사항인 '커 보이는 건물'을 실현하기 위해 건물을 여러 덩어리들이 조합되어 있는 것처럼 디자인했습니다. 묵직한 덩어리감은 거대하다는 인상을 줄 수 있습니다. VT Cosmetics 신사동 사옥은 일곱개의 기다란 덩어리가 덧붙고 덧붙어 몸집을 부풀린 모습입니다. 이 독특한 외관은 도심 속 작은 필지에서도 기업의 존재감을 드러낼 수 있습니다.

.jpeg)
이 협소한 대지는 4m 이면도로를 사이에 두고 저층 주거지역과 맞닿아 있습니다. 흥미로운 사실은, 제도적으로 도산대로 최고 높이 지정구역에 속한다는 점입니다. 좁은 땅이지만, 설계 전략을 잘 세운다면 건축주 바람대로 거대해 보이는 건물을 올릴 수 있는 가능성을 지니고 있다고 생각했습니다.







“건축물의 법정 최대 볼륨을 형태적으로 단순화하여 일곱 개의 묵직한 덩어리로 계획했다. 다시 이 가운데 두 개의 덩어리는 투명한 덩어리로 계획하여 채광과 환기를 담당하게 했고, 이를 통해 나머지 덩어리들이 개구부로부터 자유롭게 했다.”
- 김한중(피그건축사사무소 전 공동대표), ’작은 거대함’, 「SPACE(공간)」 620호, 2019년 7월

.jpeg)
좁지만 넉넉한
덩어리의 조합으로 건물 형태를 만든 만큼 내부에도 독특한 조형이 드러납니다. 그중 투명한 덩어리는 시선을 바깥으로 유도해 좁은 실내를 답답하지 않게끔 하죠. 그뿐만 아니라 채광과 환기가 가능해 디자인과 기능 모두를 충족시킬 수 있습니다. 일반적으로 층고가 높으면 계단 면적이 많이 필요합니다. 이 사옥은 건축면적이 좁은 만큼 층고를 3m 이내로 계획해 코어 면적을 최소화했습니다. 대신 개방감을 위해 서너 개 층 일부를 뚫고 곳곳에 조망창을 두었습니다.
.jpeg)
.jpeg)
.jpeg)
.jpeg)
.jpeg)



밝고 바람이 잘 통하는 다세대주택을 만들고 싶었습니다. 우리는 원룸, 투룸, 빌라 등으로 불리는 다세대주택에서의 삶을 잘 알고 있습니다. 우리 도시에서 가장 흔한 주거유형 중 하나인 다세대주택이 조금 더 쾌적한 환경이 되었으면 좋겠습니다. 그래서 우리는 다세대주택을 구성하는 요소를 하나하나 살펴보며, 사업성을 만족하면서 공간의 품질을 높일 수 있는 방법들을 찾았습니다. 이것은 그 고민의 기록입니다.






공용부분 주출입구


주차장 출입구와 보행 동선을 분리하여 도로변에서 바로 진입할 수 있는 주출입구를 마련하였으며, 스킵플로어 구조를 활용하여 도로변에서 높고 시원한 진입 공간을 형성하였습니다. 또한, 가로 경관을 해치는 노출형 주차 방식을 지양하고, 쾌적한 자주식 주차장으로 계획하였습니다.

공용부분 계단실


스킵플로어 구성으로 계단참에서 각 세대로 직접 진입할 수 있도록 하였으며, 복도와 같은 불필요한 공용공간을 최소화하여 각 세대가 활용할 수 있는 마당 등의 여유 공간을 확보하였습니다. 또한, 어두운 복도 공간 대신 밝고 쾌적한 계단실을 통해 세대로 진입하도록 설계하였습니다.

전용부분 중정세대

계단참에서 단독으로 세대로 진입할 수 있으며, 외부 마당을 거쳐 들어가도록 설계하여 마치 단독주택에 들어서는 듯한 공간 경험을 제공합니다. 또한, 중정과 마당을 포함한 세 면이 외기와 접하여 풍부한 채광과 자연 환기가 가능하도록 하였습니다. 더불어, 중정을 통해 위아래 세대 간의 소통이 이루어질 수 있도록 계획하였습니다.




전용부분 4bay 세대



채광이 좋은 남향면과 공간적 여유가 있는 11m 도로변을 따라 매스를 길게 형성하고, 그에 따라 각 세대를 배치하여 4-bay 공간을 구성하였습니다. 남향과 도로변을 향한 긴 매스에 배치된 세대들은 네 개의 창호를 통해 각각 다른 기능의 공간과 면하도록 설계하여, 실내 어디에서든 동일한 조건의 채광과 환기, 그리고 조망이 가능하도록 하였습니다. 또한, 도로변에 위치한 2층 세대에는 넉넉한 테라스를 배치하여 적극적인 외부 활동이 가능하도록 하였습니다.


전용부분 주인세대


최상층에는 주인 세대를 배치하였으며, 외부 마당을 통해 세대로 진입하도록 하여 마치 단독주택에 들어가는 듯한 공간 경험을 제공하였습니다. 또한, 스킵플로어 구조와 다락, 그리고 높은 층고를 가진 거실을 활용하여 입체적인 공간을 구성하였습니다. 더불어, 네 면이 외기에 면해 있어 실내 어디에서나 풍부한 채광과 자연 환기가 가능하도록 설계하였습니다.






건축 콘셉트의 바탕이 된 사용자 분석
제주도의 넘쳐나는 숙소 사이에서 새로운 숙소를 지을 때, 여행객의 기대를 충족시켜주는 설계가 곧 경쟁력을 높이는 일일 것입니다. 그렇다면 어떤 사람들이 제주도에 오는지 먼저 파악해야 하겠죠. 제주도 관광객 중 내국인 재방문율은 70~80%에 달한다고 합니다(제주관광공사, 「2021년 제주특별자치도 방문관광객 실태조사」). 왜 그들은 이미 가봤음에도 여러 번 제주도를 찾는 걸까요? 우리가 내린 결론은 ‘망명’입니다. 일상에서 벗어나 누구에게도 방해받지 않고 쉬기 위해 제주도를 택하는 것입니다. 예상 고객의 니즈는 곧 건축 콘셉트의 바탕이 되었습니다.

1700여 평에 이르는 전체 대지를 현명하게 나눠 쓰고자 여러 대안을 검토한 결과, 대지 가운데를 중심으로 건축하기로 했습니다. 건물은 숙소 성격-내외부 공간이 오밀조밀한 유형, 내외부 공간이 널찍널찍한 유형-에 따라 적절한 자리에 배치되었습니다.


“옛날처럼 한라산과 성산 일출봉을 패키지로 보고 오는 시대는 지났죠. 그럼 지금 제주에 가는 사람들이 원하는 건 뭘까요. 저희가 내린 결론은 ‘망명’입니다. VT 하가이스케이프는 이미 제주도를 여러 번 가본 사람들, 그러나 또 다시 일상의 망명지로서 제주를 택한 이들을 위한 곳이에요.”
- ‘제주 속 다른 작은 제주… 혼자임을 느끼다’, 「한국일보」, 2018년 3월 14일


오밀조밀한 숙소
오롯이 쉴 수 있는 나만의 공간이 콘셉트였기에 어떻게 나만의 공간을 만들 수 있을지 고민했습니다. 내외부 공간이 오밀조밀한 숙소는 “벽이 손에 닿을 듯 가까이 있을 때” 안온하며 비로소 혼자라고 느끼는 사람을 위한 곳입니다. 여행객은 미로같은 돌담을 따라 나만의 도피처로 들어가게 되죠. 침실, 거실, 마당, 노천탕 등 모든 공간이 잘게 나뉘어 위요감, 즉 벽으로 둘러싸인 아늑함을 느낄 수 있습니다.







“지붕이 있는 실내공간은 침실과 주방뿐이지만, 외부공간들 역시 천장이 열린 방으로 사용되기를 원했다. 내리는 눈을 맞으며 목욕을 하고, 파란 하늘을 바라보며 돌담 옆에서 밥을 먹을 수 있는 방들을 계획했다.”
- 피그건축사사무소, '누구에게도 방해 받지 않고, 쉴 수 있는 집, 제주 VT 하가이스케이프', 「전원속의 내집」






“작은 스케일의 지붕과 제주석 담장(울담)에 의한 건축의 짜임이 강력하다. 담장을 따라 걷다 보면 자연스레 첫 번째 건축물에 들어서게 된다. 한길에서 올레를 따라 올레목을 거쳐 현관에 이르는 일련의 시퀀스가 흡사 길 건너의 하가리 마을과 유사하다.”
- 양건(가우건축사사무소 대표), ‘VT 하가이스케이프: 정주와 유목 사이 시대적 표상’, 「SPACE(공간)」 602호, 2018년 1월


널찍널찍한 숙소
내외부 공간이 널찍널찍한 숙소는 마치 나 혼자 지구에 뚝 떨어져 있는 듯한 느낌을 줍니다. 내부는 그 어떤 구획없이 트여있고, 외부에는 900평의 드넓은 들판과 그너머 바다가 펼쳐져 있죠. 도로에 접하지 않은 맹지는 오히려 프라이빗한 마당으로 활용되었습니다. “광활한 공간이 펼쳐지고 거기 아무도 없다는 걸 눈으로 확인해야 비로소 혼자”라고 느끼는 사람을 위해서요.




"C동은 마을을 등진 채 북쪽 앞마당과 마주한다. 끝이 보이지 않는 농지는 이곳에 자기 혼자뿐이라는 사실을 재차 확인시켜준다. 현관부터 주방, 식당, 거실, 침실이 일직선으로 배치된 평면은 전면창으로 인해 드라마틱한 입면을 완성한다."
- '제주 속 다른 작은 제주… 혼자임을 느끼다', 「한국일보」, 2018년 3월 14일



"넓은 공터와 원경의 바다 조망을 차지하고 앉았다. (...) 오픈플랜에 걸맞게 전면을 최대한 개방하고 구조를 창호 프레임에 숨기려는 의도가 돋보인다."
- 양건(가우건축사사무소 대표), 'VT 하가이스케이프: 정주와 유목 사이 시대적 표상', 「SPACE(공간)」 602호, 2018년 1월



